Superbe Studio de 28 m² avec grande terrasse au dernier étage – Paris 15ème

  • 1,066.41€/mois
29 Rue Victor Duruy, 75015, Paris, France
  • Appartement
  • Type de bien
  • 1
  • Salle de bain
  • 28.02
Location Loué

Superbe Studio de 28 m² avec grande terrasse au dernier étage – Paris 15ème

29 Rue Victor Duruy, 75015, Paris, France
  • 1,066.41€/mois

Description

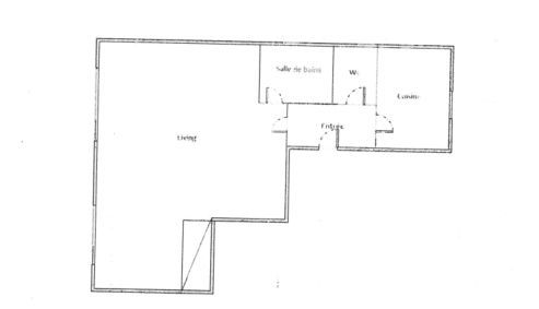
HL GESTION vous propose à la location ce charmant studio de 28 m², situé au 6ème et dernier étage avec ascenseur d’une copropriété sécurisée et bien entretenue dans le 15ème arrondissement de Paris.

Vous souhaitez visiter cet appartement ? Ne tardez pas à déposer votre dossier et à demander votre visite en cliquant sur ce lien : https://hlgestion.nockee.fr/listings

Baigné de lumière et sans vis-à-vis direct, ce bien rare offre un cadre de vie exceptionnel grâce à sa large terrasse (avec store banne), véritable extension de la pièce de vie, idéale pour profiter des beaux jours et d’une vue dégagée sur les toits.

L’appartement se compose d’une entrée desservant une belle pièce principale avec parquet au sol et de grands placards à miroirs intégrés optimisant l’espace. Vous profiterez d’une cuisine séparée, aménagée et semi équipée (réfrigérateur et plaques de cuisson), disposant de sa propre fenêtre.

Côté confort et commodités, le bien dispose d’une salle de bains avec baignoire et meuble vasque, ainsi que de WC séparés, un atout appréciable pour cette surface.

L’immeuble est sécurisé par digicode et interphone. Une cave complète ce bien, offrant un espace de stockage supplémentaire.

Un bien ‘coup de cœur’ alliant calme, luminosité et extérieur, à découvrir rapidement.

Loyer cc : 1066,41 € (dont provisions pour charges 197 €/mois comprenant l’entretien des parties communes, ascenseur, eau chaude et chauffage collectif).
Dépôt de garantie : 869 €
Honoraires agence : 420 €

DPE : classe E

  • Adresse 29 Rue Victor Duruy
  • Ville Paris
  • Code Postal 75015

Details

Updated on April 25, 2026 at 11:45 am
  • Référence: HL29 Duruy- 6ème étage
  • Prix: 1,066.41€/mois
  • Surface: 28.02 m²
  • Pièce: 1
  • Salle de bain: 1
  • Type de bien: Appartement
  • Statut de propriété: Location

Détails supplémentaires

  • Etage: 6
  • Chauffage: Collectif
  • Cuisine: Séparée
  • Cave: oui
  • Ascenseur: oui
  • Nombre WC: 1
  • Type Loyer: cc
  • Provisions sur charges: 197.00€
  • Honoraires état des lieux: 84.00€
  • Dépot garantie: 869.00€
  • Copropriété: oui
  • Honoraires: 420.00€

Caractéristiques

360° Virtual Tour

Classe Energetique

  • classe Energetique: E
  • Indice global de performance énergétique: 287
  • Indice de performance des énergies renouvelables: 62
  • Performance énergétique du bâtiment: E
  • A+
  • A
  • B
  • C
  • D
  • 287 | Classe énergétique E
    E
  • F
  • G
  • H

Annonces similaires

Comparer des annonces

Comparer